Vous avez des questions ?

Contactez-nous au :

+33 9 71 58 31 64

betsynergie@wanadoo.fr

 

Vous pouvez également utiliser notre formulaire de contact.

Nos coordonnées

Synergie SARL

17 Avenue Maillard

19100 Brive



 

Construction d’un Groupement Scolaire Léo Lagrange - Les Mureaux (78)

Maître d’ouvrage : Commune des Mureaux

Architectes : Agence Harari – Paris (75)

Surface totale : 605 m²

Ecole maternelle – Ecole primaire – Centre de formation

Cuisine et salles de restaurant -  600 repas :

- Salle de restauration maternelle 92 places – service en salle

- Salle de restauration élémentaire 82 places  - self-service

- Salle de restauration adultes 92 places – self-service

 

Construction d’une demi-pension – Lycée de La Sauque – La Brède (33)

Maître d’ouvrage : OGEC

Maître d’œuvre : Agence Saint-Projet - Bordeaux

Surface : 975 m²

1000 rationnaires

Montant prévisionnel des travaux : 2 M€ H.T

Lot CFO/CFA – Chauffage ventilation plomberie sanitaire

Equipement cuisine

Livraison Septembre 2021

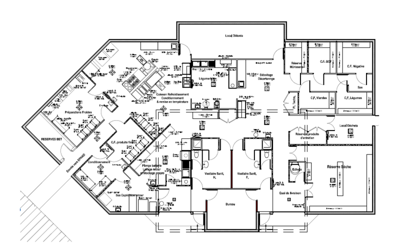
Construction d’une Cuisine Centrale – Chamberet (19)

Maître d’ouvrage :   Association Vieillesse et Handicap Chamberet

Architectes : Centre Archis – Tulle (19)

Montant des travaux : 1 195 560 € T.T.C.

Surface : 420 m²

Capacité : 800 repas / jour

Livraison en liaison chaude : Ehpad - Ecoles

2016

Restaurant inter-administration de Tulle (19)

Maîtrise d'oeuvre Lots Equipement Cuisine - Froid - Panneaux isothermes - CVC - Electricité

Architecte mandataire : Hervé David - Architectes

Maître d'ouvrage :  Préfecture de la Corrèze

Montant de l’opération : 2 212 600 Euros TTC

Surface : 1 000 m²

2010 – 2011

 

Restaurant scolaire du Collège de Saint Léonard de Noblat (87)

 

Missions :

  • Maîtrise d'oeuvre Réaménagement de la demi-pension - Bet mandataire
  • Lot Equipements cuisine - Froid - Panneaux isothermes - CVC - Electricité

Maître d'ouvrage : Département de la Haute Vienne (87)

Architecte associé : Centre Archi - Henry Turlier - Tulle (19)

Montant de l’opération : 1 125 000 Euros

Surface : 600 m²

2010